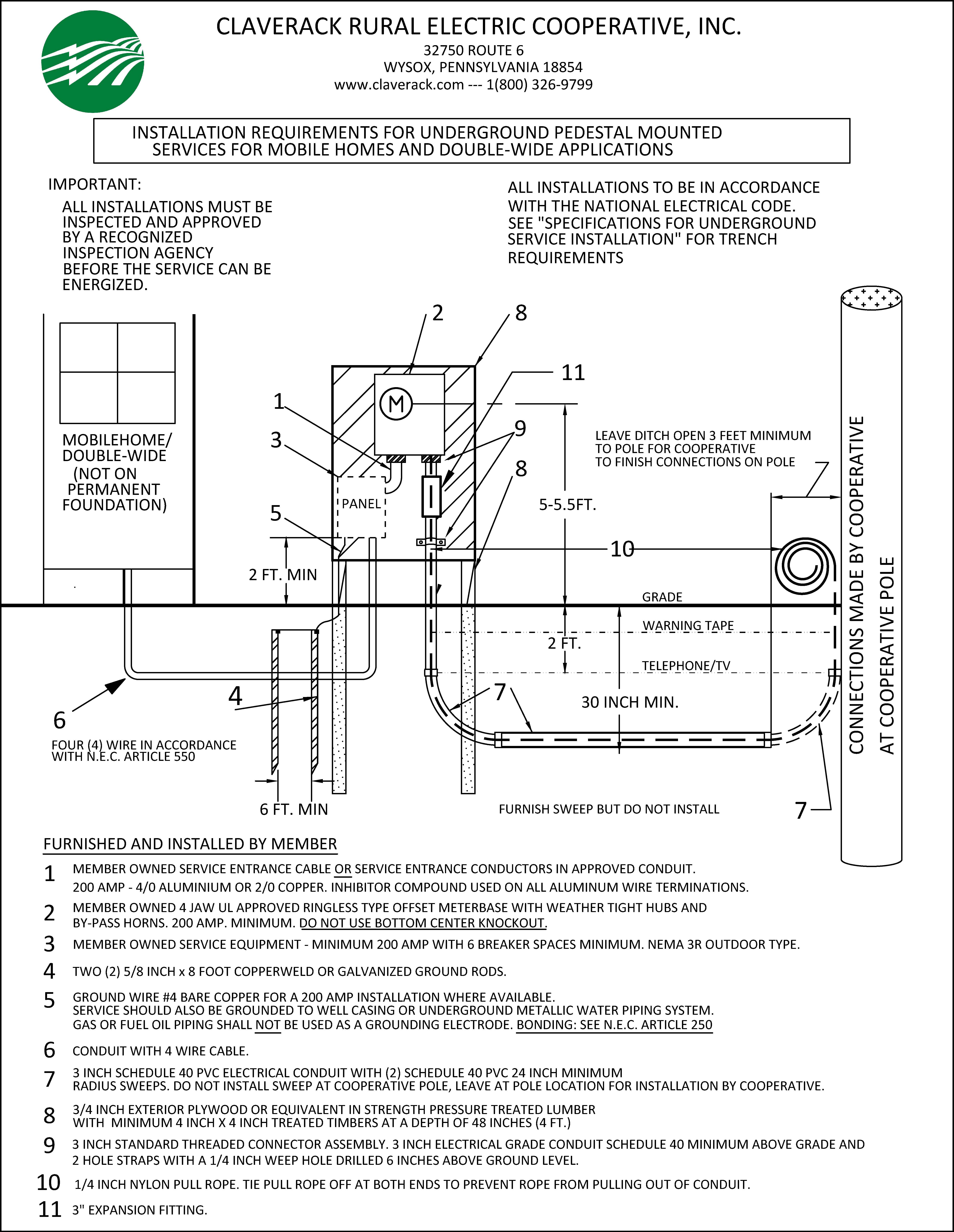
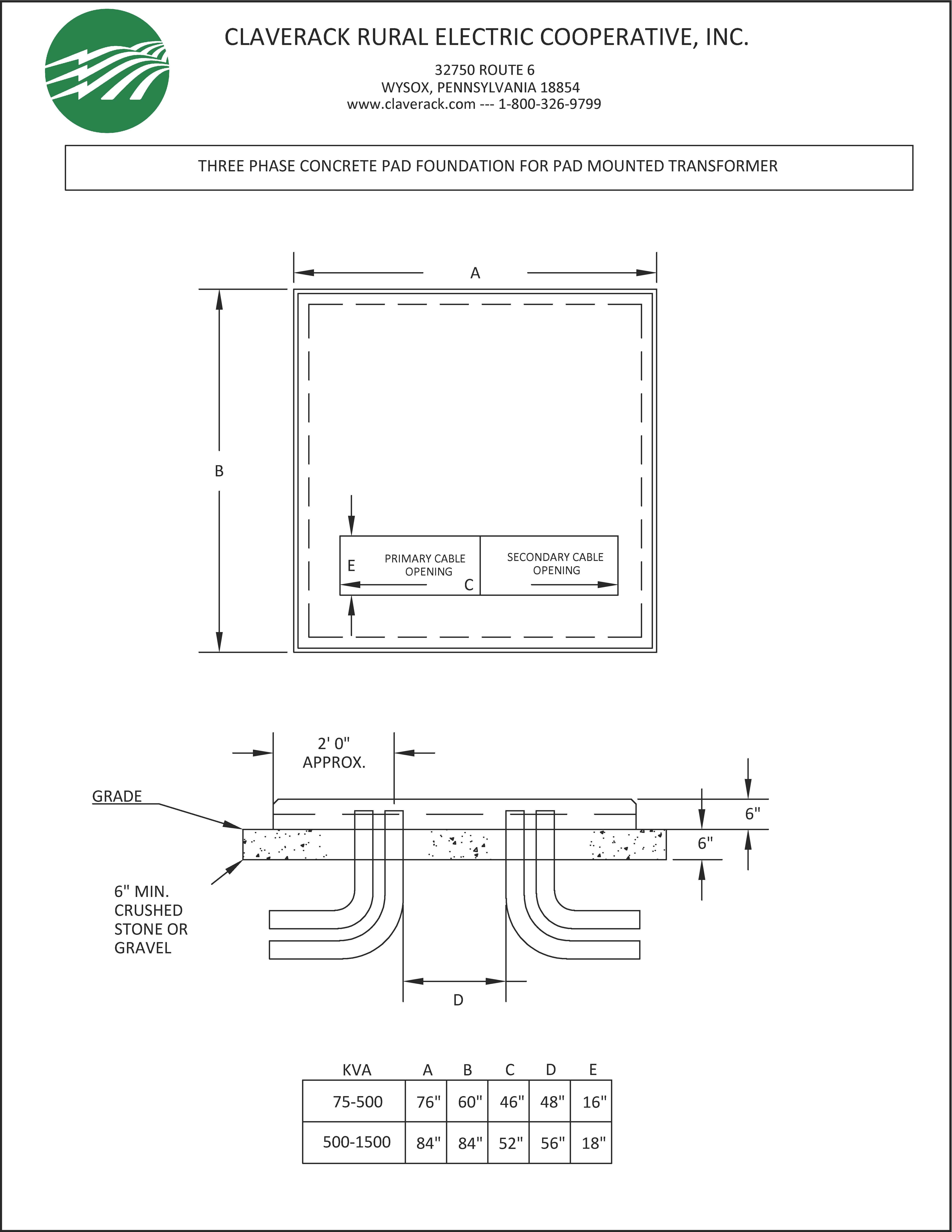
Please use the links below to access our service drawings and specifications. These should be used for all new construction and any upgrades to existing electrical service equipment. Remember, most electrical service work requires an inspection, and the additional links below may be helpful to you for work planning and inspection purposes.










